BAKIRKÖY 46
Proje Özellikleri
Toplam Konut
1,227 Adet
Durum
Tamamlandı
İlan Tarihi
19.10.2025
Proje Olanakları
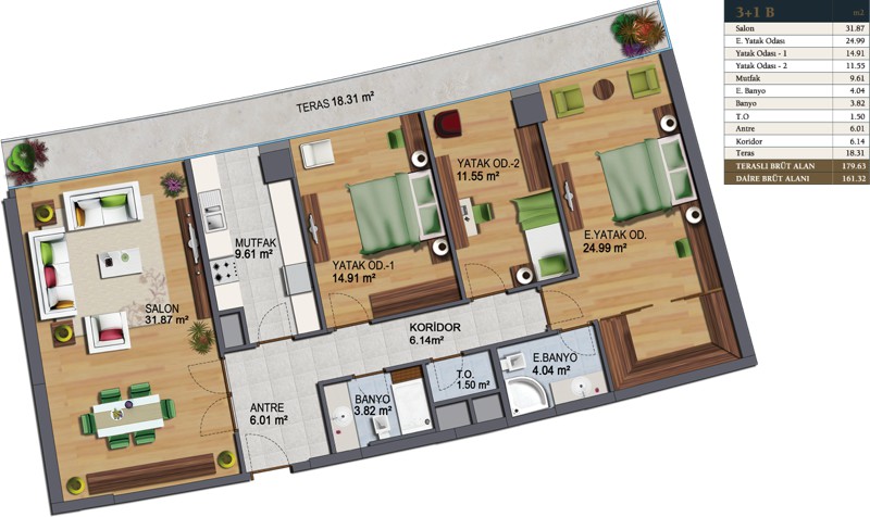
Daire Seçenekleri: 1+0,1+1,2+1,3+1,4+1,5+1,6+1,7+1
Metrekare Aralığı: 59
Teslim Tarihi: 2016-01-01
Fiyat Aralığı: 367000
Konum
Geliştirici
AĞAOĞLU İNŞAAT
1981 yılında ilk şirketi olan Akdeniz İnşaat ile faaliyetlerine başlayan Ağaoğlu Şirketler Grubu;...
0 216 687 11 11
info@agaoglu.com.tr
Detaylı Bilgi