MODERNİSTA
Proje Özellikleri
Toplam Konut
32 Adet
Durum
Tamamlandı
İlan Tarihi
19.10.2025
Proje Olanakları
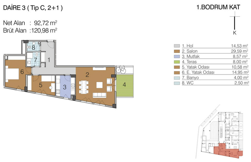
Daire Seçenekleri: 1+1,2+1,3+1,4+1
Metrekare Aralığı: 82
Teslim Tarihi: 2014-05-01
Fiyat Aralığı: 710000
Geliştirici
AKRO YAPI
1998 yılında Yuvam İnşaat adı altında sektöre adım atan firmamız İstanbul’un yenilenen yerleşim a...
0212 322 44 92
info@akroyapi.com.tr
Detaylı Bilgi