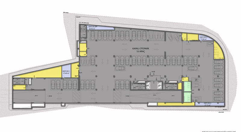
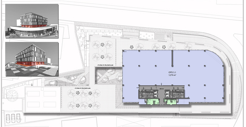
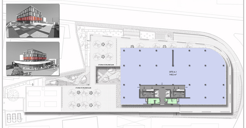
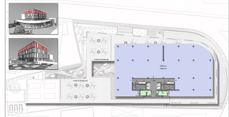
RÖNESANS BİZ MECİDİYEKÖY
Proje Açıklaması
İSTANBUL'UN MERKEZİNDE NEFES ALABİLECEĞİNİZ BİR OFİS
Proje Özellikleri
Durum
Tamamlandı
İlan Tarihi
19.10.2025
Proje Olanakları
Teslim Tarihi: 0000-00-00
Geliştirici
RÖNESANS GAYRİMENKUL YATIRIM A.Ş.
Rönesans Gayrimenkul Yatırım A.Ş. (RGY), Rönesans Grubu'nun ticari gayrimenkul geliştirme ve yatı...
0212 241 06 03
Detaylı Bilgi